Ahoj všichni,
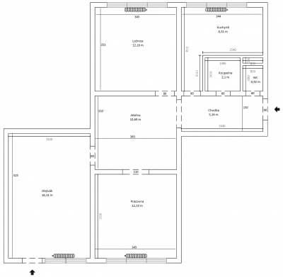
potřebuji poradit s návrhem sítě (především výběrem vhodného routeru a AP) do panelového bytu 3+1, půdorys v příloze. Čeká nás nová elektroinstalace, takže je možnost natahat kabely do většiny místností. Síťovou zásuvku plánuji ve všech obytných místnostech.
Topologii sítě bych si představoval nějak takhle:
Rack bych chtěl mít umístěný ve vstupní chodbě ve skříni.
1. Typ a výrobce routeru, který tam máš teď?
žádný, v bytě nebyl internet
2. Typ připojení
Optika od Pody 1000 / 300 Mbps ukončená jejich Huawei zařízením v režimu bridge
3. Požaduješ WiFi?
AP bych rád nějaké s WiFi 6, umístění bych si představoval ve středové místnosti (v půdorysu jídelna). Zde nejsem schopný odhadnout, zda jedno AP pokryje také kuchyň a balkon a zda nebude lepší použít dvě?
4. Kolik zařízení bude k routeru připojeno? Případné rozšíření (NAS, kamery, TV, PS, atd.)
kabel: 1x NAS, 1x TV, 3x PC; WiFi: 5x mobil, 2x laptop, nějaké chytré osvětlení, odhadem max 20 zařízení na WiFi
5. Funkce routeru
zde jsem nenáročný, jde mi primárně o to, aby to spolehlivě šlapalo, ale například logování by bylo fajn
6. Požaduješ DLNA, USB port atd?
není nutné
7. Rychlost internetu dle smlouvy?
1000 / 300 Mbps
Shrnutí:
Mikrotik je pro mne zbytečně složitý na nastavování a rád bych se mu vyhnul, ale pokud bude výrazně lepší v poměru cena/výkon, tak jsem schopný se s ním sžít. Ubiquiti mi přijde fajn a mám s ním zkušenosti, ale jejich routery mi přijdou zbytečně předražené na podobnou síť, ale zvažuji využití jejich AP. Dává UniFi AP smysl i bez jejich routeru/controlleru? Líbil se mi Ubiquiti UniFi Dream Router, ale pak jsem zjistil, že na gigabit je nejspíš příliš pomalý. Bude stačit jedno AP umístěné v středové místnosti nebo je lepší zvažovat 2?
Snažil jsem se svoji situaci podat co nejpřehledněji, ale rád zodpovím doplňující otázky, pokud bude potřeba.
(Cena je při výběru důležitá, ale není omezující a za kvalitní síť si klidně připlatím.)
Děkuji za případné návrhy.
Výběr routeru a AP do panelového bytu 3+1
Moderátoři: Mods_junior, Mods_senior, HW spec team
-
Uziv00
Re: Výběr routeru a AP do panelového bytu 3+1
Ahoj,
nepíšeš cenu, takže mé doporučení je: https://www.czc.cz/asus-tuf-ax6000/363398/produkt
Případně něco srovnatelného. Má 2,5Gbit WAN port, takže tu gigabitovou rychlost v pohodě zvládne. Pokud ho umístíš někde uprostřed jídelny nahoře, neměl by být ani problém se signálem - samozřejmě záleží na okolním rušení, to si netroufám odhadnout.
Můžeš se rozhodnout pro cokoli jiného se srovnatelnými parametry.
nepíšeš cenu, takže mé doporučení je: https://www.czc.cz/asus-tuf-ax6000/363398/produkt
Případně něco srovnatelného. Má 2,5Gbit WAN port, takže tu gigabitovou rychlost v pohodě zvládne. Pokud ho umístíš někde uprostřed jídelny nahoře, neměl by být ani problém se signálem - samozřejmě záleží na okolním rušení, to si netroufám odhadnout.
Můžeš se rozhodnout pro cokoli jiného se srovnatelnými parametry.
Naposledy upravil(a) Uziv00 dne 22 srp 2023 12:01, celkem upraveno 1 x.
Re: Výběr routeru a AP do panelového bytu 3+1
Díky za rychlou odpověď a tip na router. Vidím to tak, že to prvně zkusím jen s routrem a kdyžtak přidám někam AP pro zlepšení signálu.
Mám ještě hloupý dotaz k vedení kabelů, jelikož mi to není úplně jasné. Od Huawei bridge od ISP musím dovést kabel do WAN portu routeru a od něj z jednoho jeho LAN portu dalším kabelem zpět do switche, který budu mít na chodbě? Tudíž dvěma kabely nebo lze kabel od ISP vést rovnou do switche a ten k routeru připojit pouze jedním kabelem do WAN?
(proč to řeším: patch panel a switch chci mít na chodbě schovaný ve vestavné skříni)
Mám ještě hloupý dotaz k vedení kabelů, jelikož mi to není úplně jasné. Od Huawei bridge od ISP musím dovést kabel do WAN portu routeru a od něj z jednoho jeho LAN portu dalším kabelem zpět do switche, který budu mít na chodbě? Tudíž dvěma kabely nebo lze kabel od ISP vést rovnou do switche a ten k routeru připojit pouze jedním kabelem do WAN?
(proč to řeším: patch panel a switch chci mít na chodbě schovaný ve vestavné skříni)
Re: Výběr routeru a AP do panelového bytu 3+1
Jak píšeš v první části. ISP -> WAN router -> LAN switch
Re: Výběr routeru a AP do panelového bytu 3+1
Ok, díky za potvrzení.
-
- Podobná témata
- Odpovědi
- Zobrazení
- Poslední příspěvek
-
- 21 Odpovědi
- 15157 Zobrazení
-
Poslední příspěvek od petr22
-
- 1 Odpovědi
- 4605 Zobrazení
-
Poslední příspěvek od atari
-
- 7 Odpovědi
- 6151 Zobrazení
-
Poslední příspěvek od HelFix
-
- 9 Odpovědi
- 7262 Zobrazení
-
Poslední příspěvek od VojtouNerCZ
-
- 15 Odpovědi
- 16637 Zobrazení
-
Poslední příspěvek od Ghoust23

